Steel Acoustic Doors
SilentDoor Rw® 62S AIRLOCK (Steel)
High Performing 62dB Steel Acoustic Doorsets
Model Reference: SD-SAD62
Introducing the World-Leading Acoustic Performance Doorset: SilentDoor Rw® 62S AIRLOCK interlocking door sets for exceptional acoustic performance.
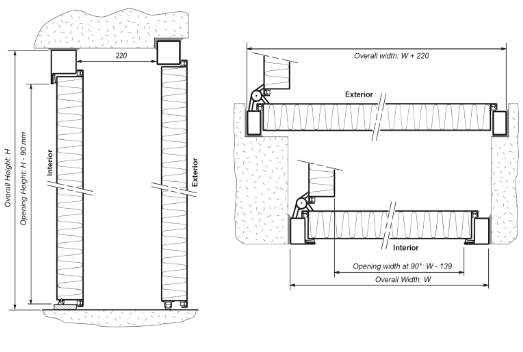
Prepare to be astounded by the unparalleled sound control offered by SilentDoor Rw® 62S AIRLOCK, a revolutionary doorset that combines two exceptional acoustic doorsets into one extraordinary solution. By ingeniously merging our acclaimed 45dB and 40dB doorsets, and incorporating a minimum air gap of 220mm, we have achieved a groundbreaking acoustic performance of 62dB, setting a new global standard for sound insulation. By incorporating a minimum air gap of 220mm, we have harnessed the power of sound separation, allowing SilentDoor Rw® 62S AIRLOCK to achieve its world-leading acoustic performance. This strategic integration of air gap technology further enhances the doorset's ability to isolate and reduce sound transmission between spaces.
Suitable applications (recommendations are as follows)
SilentDoor Rw® 62S AIRLOCK is ideally suited for Test cell environments, Audiology rooms and Recording studios.
Learn more on how much 5dB makes a difference, when choosing a Silentdoor Rw®
HERE
Door Openings
RIGHT
LEFT



