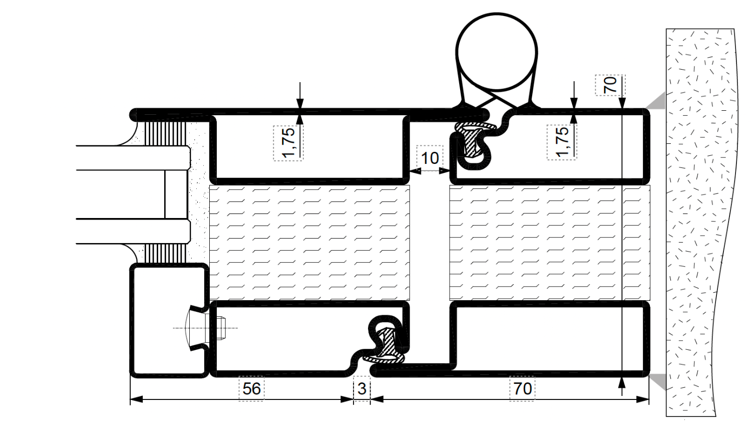
Glazed Steel Doors
SilentDoor Rw® Glass BB4
Burglary and bulletproof protection for sensitive locations
Model Reference: SD-GBB4
The SilentDoor Rw® Glass BB4 is a state-of-the-art glazed doorset meticulously engineered for environments where superior security, ballistic protection, and thermal efficiency are of utmost importance. Available in both single-leaf and double-leaf configurations, this innovative doorset seamlessly combines advanced protection features with a sleek and modern design, making it the perfect solution for high-security applications. Whether in government buildings, financial institutions, or other sensitive facilities, the SilentDoor Rw® Glass BB4 provides an exceptional balance of safety and aesthetics, ensuring that the spaces they protect are not only secure but also visually appealing. With its robust construction and sophisticated appearance, this doorset stands out as a premier choice for any setting prioritizing safety without compromising on style.
Key Features of SilentDoor Rw® Glass BB4
- Enhanced Security: Provides RC4-level resistance to forced entry, ensuring high protection for sensitive areas.
- Ballistic Protection: Offers FB4 ballistic resistance, safeguarding against a range of firearms and enhancing safety.
- Energy Efficiency: Reduces heat loss with a low U-value, contributing to overall energy savings and effective insulation.
- Modern Aesthetic: Combines advanced security features with a sleek, contemporary glazed appearance, seamlessly fitting into modern architectural designs.
Suitable applications (recommendations are as follows)
SilentDoor Rw® Glass Glass BB4
- High-Security Facilities: Ideal for use in secure areas such as government buildings, financial institutions, and sensitive industrial sites where advanced protection is required.
- Luxury Residential: Suitable for high-end homes and properties where both security and a sleek, modern aesthetic are important.
- Public and Commercial Buildings: Perfect for areas needing enhanced security and ballistic protection, including lobbies, reception areas, and critical access points.
Learn more on how much 5dB makes a difference, when choosing a SilentDoor RW®
HERE

Door Openings
RIGHT
LEFT




